
Pushkar’s
kalpavriksha
Anna Nagar West
Premium Residential
Apartment
Residences envisioned for those who seek distinction,
blending architectural grace with meaningful
comfort and lasting value.
Total Units10 Units
Bedrooms3 BHK
FLOORS5 Floors
Area5500 Sq. Ft.
Parking - 1 Reserved Car Park For Each Flat
Anna Nagar West
Plot No. 1021, Door No 96, 6th Avenue, Anna Nagar West, Chennai – 600 040.
EXPERIENCE
THE PURE
MAGIC
OF Premium
SERENITY
Location Highlights
Positioned for convenience and growth, the location enhances daily living while
securing long-term value.
Chinmaya Vidyalaya Senior Secondary School
250 Meters
C.S.I Jessie Moses School
800 Meters
CTS Speciality Hospital
750 Meters
Dr. Lenin’s Orthoinde Hospital
800 Meters
Anna Nagar Tower Metro
1000 Meters
Shopping/Entertainment
200 Meters
Bank / ATM
200 Meters
Amenities
Spaces and amenities designed to complement modern lifestyles, promoting wellbeing and
everyday indulgence.
Note - * These Pictures used for Representation purpose, May vary from site to site *
SPECIFICATION
Premium specifications that uphold quality standards, thoughtful detailing and long-term
performance throughout the home.
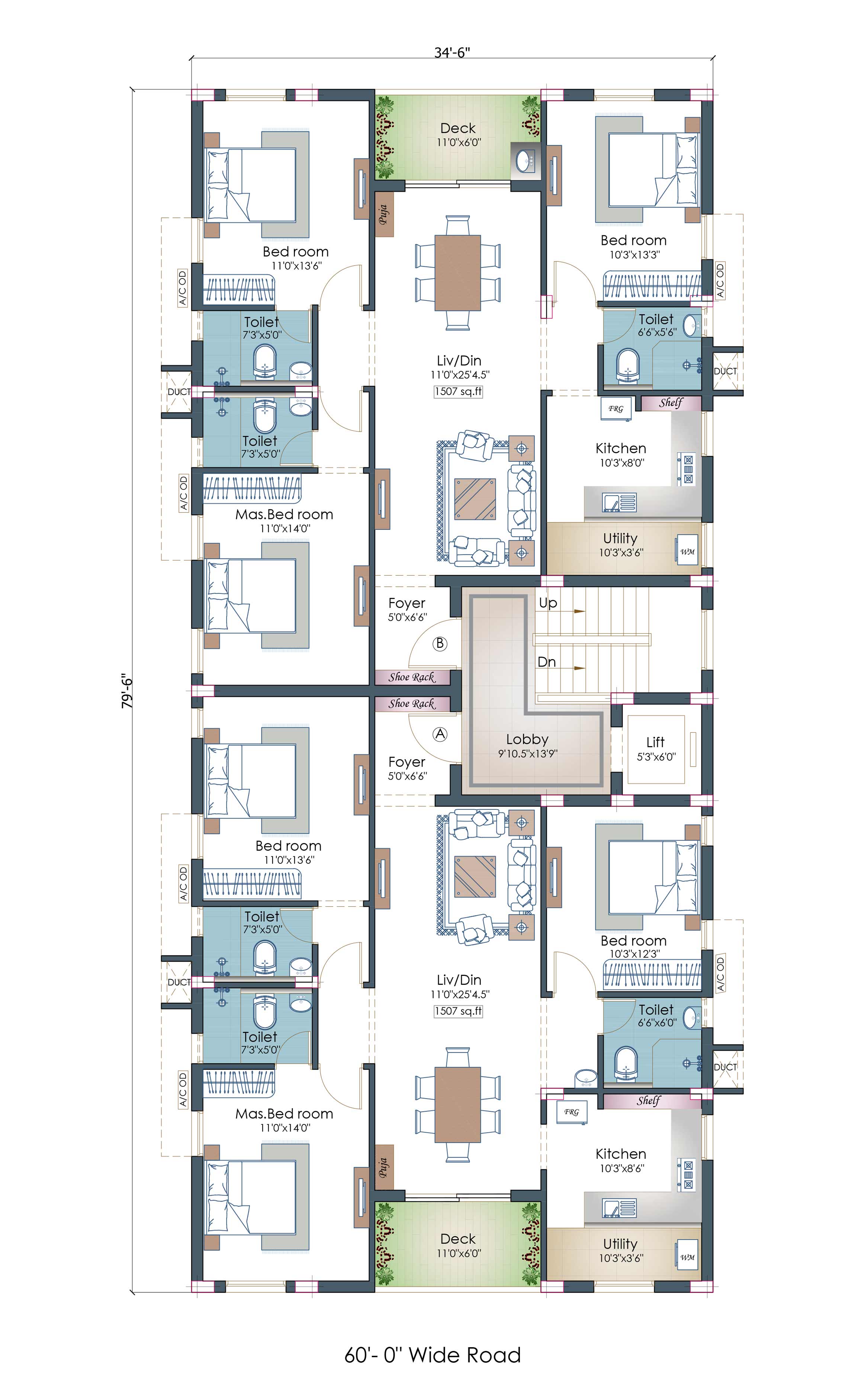
Floor Plans
Premium specifications that uphold quality standards, thoughtful detailing and long-term
performance throughout the home.
STILT FLOOR PLAN
TYPICAL FLOOR PLAN
Available Units
Explore a range of available units thoughtfully designed to suit diverse
preferences, offering comfort and refined living experiences.
| Unit | Flat Area | Status | Facing |
|---|---|---|---|
| First Floor | |||
| 1-A | 1507 sq. ft. | Available | East |
| 1-B | 1507 sq. ft. | Available | East |
| Second Floor | |||
| 2-A | 1507 sq. ft. | Sold | East |
| 2-B | 1507 sq. ft. | Sold | East |
| Third Floor | |||
| 3-A | 1507 sq. ft. | Sold | East |
| 3-B | 1507 sq. ft. | Sold | East |
| Fourth Floor | |||
| 4-A | 1507 sq. ft. | Sold | East |
| 4-B | 1507 sq. ft. | Sold | East |
| Fifth Floor | |||
| 5-A | 1507 sq. ft. | Available | East |
| 5-B | 1507 sq. ft. | Available | East |
Discover Homes Ready For Your Lifestyle
PAYMENT
SCHEDULE
A buyer-focused payment structure offering clarity,
flexibility, and peace of mind
throughout the
purchase journey.
Have more questions on your mind?
Get in touch with our team to get more details.
CONTACT US
STAGE OF WORK
- Initial Payment ( EB + CMWSSB +Car Park Charges incl.)
- On Completion of Foundation
- On Completion of Ground / Stilt Floor Roof Slab
- On Completion of First Floor Roof Slab
- On Completion of Second Floor Roof Slab
- On Completion of Third Floor Roof Slab
- On Completion of Fourth Floor Roof Slab
- On Completion of Fifth Floor Roof Slab
- On Completion of Brickwork in respective Flats
- On Handing over
PAYMENT %
- 15%
- 10%
- 10%
- 10%
- 10%
- 10%
- 10%
- 10%
- 10%
- 05%
Installment No.
- I
- II
- III
- IV
- V
- VI
- VII
- VIII
- IX
- X
PREFERED
BANKERS
Approved financial partners offering seamless
home loan support and confidence
throughout
your homebuying journey.




Project Status
Timely project status updates ensuring confidence through transparency and
informed
decision-making.
Premiumness
Reflected in Real
Experiences
Homeowners reflect on how premiumness is experienced
through thoughtful design & delivery.
TRUSTED & QUALITY
PARTNERSHIP
We foster trusted quality partnerships built with unmatched
attention to detail


















